Tai Ning is a system-oriented designer with roots in architecture and urban design, experienced in mixed-use, cultural, and high-density projects. He uses sustainable design strategies and advanced computational tools to translate complex spatial and infrastructure constraints into scalable design systems, translating complex program and constructability constraints into buildable solutions.
EXPERIENCE
About me
System Designer, Glydways | San Francisco, United States
Jun 2025 - Present
Designing next-generation urban mobility systems that integrate spatial design, systems thinking, and data-driven strategy. Focused on translating complex urban and infrastructural criteria into scalable, adaptive design frameworks.
Bridging design, engineering, and construction to deliver end-to-end space planning and execution ready packages, including test fits, FF & E layouts, and construction-ready drawing sets.
Developing repeatable workflows for rapid iteration and high-fidelity presentations, enabling teams to evaluate alternatives quickly and move from concept to coordinated deliverables with clarity.
Architectural Designer, Street Studio.LA | United States
Environmental Designer, HDIUPD | China
Aug 2024 - May 2025
Deliver all exterior and interior design and construction phases for commercial and residential projects. Demonstrated and advanced understanding of building materials, systems, codes, and building construction.
Architectural Designer, DaAo UPD | China
education
Columbia University in the City of New York
Master Science of Architecture and Urban Design
Sep 2017 - Jun 2020
Project 1: Urban Headquarters Master Plan,29 km², Handan, China
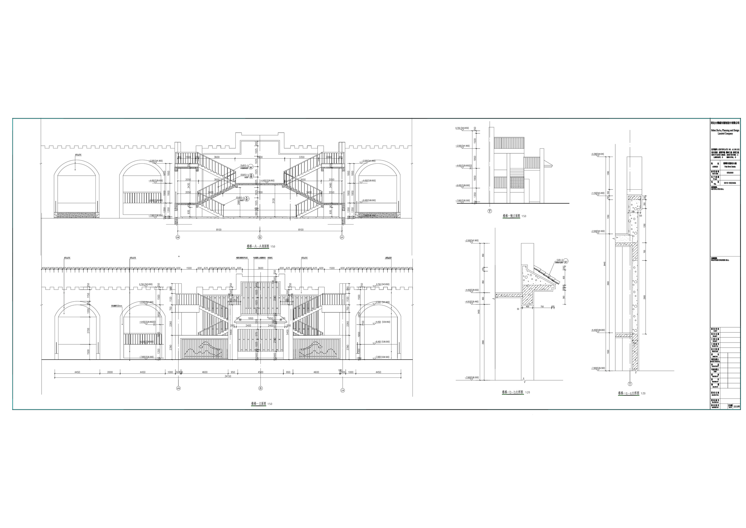
Project 2: Tianbao Tourism Planning_North Gate, 38700 ft², Cixian, China
Conduct project positioning, feasibility, constructability and risk analysis, including land use, site, zoning, program, transportation, circulation, area requirement, etc.
Deliver all design and construction phases for large-scale master plans, mixed-use centers,and office complexes. Led interdisciplinary project management for a transportation hub, utilizing integrated technique tools to enhance design,resulting in a 15% increase in vertical traffic flow.
Designed and constructed the Visitor Center, improving the experience for 1,500 daily visitors and increasing revenue through cultural initiatives.
Leveraged 38 revitalization projects, coordinating with stakeholders and construction teams. Interfaced with clients to define requirements, manage schedules, and facilitate communication.
May 2019 - Aug 2019
May 2021 - Aug 2021
University of California,Berkeley
[IN]Land
[IN]Arch ADV, CED Summer Stipend Award
Mar 2016 - Aug 2017
Using GIS and Revit for concept development to streamline data analysis and design. Led a team of 3 to complete architectural and urban design renderings with V-Ray.
May 2023- May 2024
Hebei University of Engineering
Master of Architecture, Awards of Institutional Scholarships from HBEU 2017-2020
Sep 2017 - Jul 2020

